products detial
What we can do ? different country different requirement all we can offer.
Mid-voltage ( kV) | 3.6~35kv (E.g. 35,33,24,22,20,18,15.75,13.8,13.2,12,11,10.5,10,7.2,6.6,6.3,6 etc.) |
To Low voltage ( V) | 100-660V (E.g. 100,110,115,120,127,208,200,220,230,240,346,380,400,410,415,440,480,660 etc.) |
Frequency (HZ) | 50Hz or 60Hz |
Ⅰ.Overview
XGN2-12 Medium voltage AC switchgear fixed type metal-enclosed switchgear applied to the 3.6kV~12kV three phase AC 50/60Hz system to receive and distribution power energy, and suitable for continually operation and rebuilding the switchgear which install oil switch. The busbar is single busbar system and double busbar subsection system. XGN2-12(G) is suitable for high altitude area which is developed on base of general switch. The switchgear conforms to GB3906 " 3~35kV AC Metal-enclosed Switchgear " and IEC62271-200 standard, and with function of five protections locking. The main switch of panel is ZN28A-12 series vacuum circuit breaker, equip with CD10 series and CD17 electromagnetism, CT8, CT17/CT19 series spring operating mechanism.
II. Model and description

Ⅲ.Environmental conditions
1.Suitable Altitude: <1000m
2.Suitable Temperature: -10℃ ~ +45℃
3.Relative Humidity: Daily mean ≤95%, monthly mean ≤90%
4.Gradation of Earthquake Damage: ≤ Level 8
5.Equipment shall be installed in places free from fire, explosion hazard, serious pollution, chemical corrosion and severe vibration.
Ⅳ.Specification
Item | Unit | VS1 |
Rated voltage | kV | 3.6, 7.2, 12 |
Rated current | A | 630,1250,1600,2000,3150 |
Rated short-circuit opening current | kA | 16,20,31.5,40 |
Rated short-circuit breaking current(peak) | kA | 40,50,80,100 |
Rated short-circuit stable moving current(peak) | kA | 40,50,80,100 |
Rated heat stable heating current | kA | 16,20,31.5,40 |
Rated heat stable heating time | s | 4 |
Protection grade | IP2X | |
Structure type | Single bus bar disjuction and single bus bar with branches | |
Operation mode | electromagnetic, spring and energy storage type | |
Dimension | mm | 1100x1200x2650(common) |
Weight | kg | 1000 |
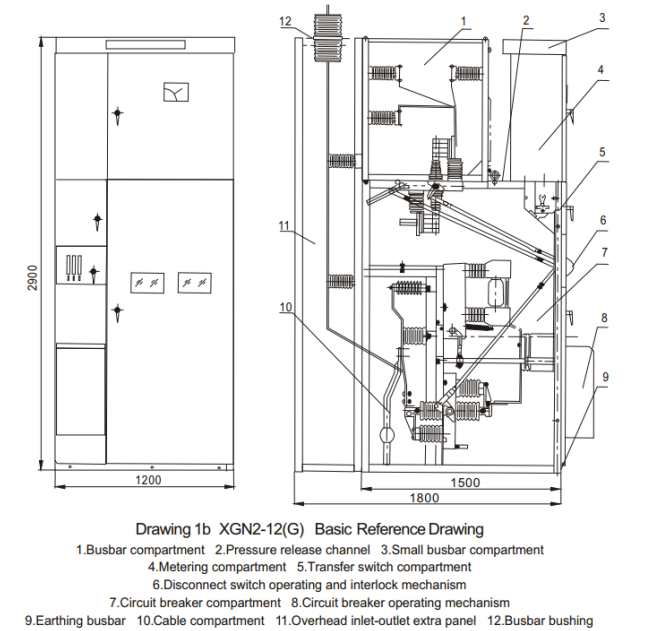
5.Overall & installation dimension


Ⅴ.Features
XGN2-12 series fixed AC metal enclosed switchgear (short for panel as below) is a new product designed and developed by AYUMP CO.LTD, based on the introduction of advanced foreign design and manufacturing technology. It applies to 3.6~12kV three phase AC 50Hz single busbar or single busbar sectional transport, distribution system, as for receiving and distributing power energy, and realize to control, monitor and protect power circuit. It is widely used for power plant, substation, petroleum, metallurgy, chemical, natural gas and other civil field.
Structure feature:
1. XGN2-12 series is metal enclosed fixed switchgear, the body is welded with angle steel and steel board, inner and outer coating is solid by static spray plastic powder.
2. This panel conforms to GB3906 3-35kV AC Metal enclosed switchgear and international standard IEC62271-200 besides, prevent from opening and closing connecting switch with load, prevent from opening and closing circuit bre aker, prevent from entering into interval with electricity, prevent from closing earthing switch with electricity (five protections adopt simple, reliable mechanical interlock device). The power indicator is installed in front of panel which reflect voltage in the side of circuit. When circuit side with electricity, lock the enclosed board and panel door. 3. Same type product and structure component can exchange each other.
4. Enclosure
4.1 The inner structure of panel is divided into circuit breaker compartment, busbar compartment, cable compartment ,relay compartment, use steel plate to separate panels. Use eddy current steel plate and epoxy resin busbar bushing to separate panel.
4.2 The panel adopts cold roll steel sheet and angle steel to weld together, without reticulation fabric, non-flame-resisting materials. Outer insulating creeping distance of components and supporting insulator, pure porcelain insulation 1.8cm/kV, organic insulation 2.0cm/kV.The air distance of phase to phase, phase to earth 125mm. There is an intelligent hygrothermoscope to start or stop heater according to the humiture condition of circuit breaker compartment and cable compartment in panel, Prevent from forming moist and high temperature.
4.3 There is a viewing port for observing of closed and open position of upper, down connecting switch without open the door. The panel is double maintenance, inspect relay compartment equipments, operating mechanism, mechanical interlock and transmission part in front, inspect main busbar, shunt circuit busbar, cable terminal, connecting switch and earthing switch.
4.4 Circuit breaker: The circuit breaker is located in the middle part, disconnecting switch and earthing switch and interlock mechanism are above it, and with indicator device, describe open and closed position.
4.5 Transformer: CT is mounted on the underpart of front side, connect with circuit breaker and connecting switch, main loop without electricity. It can carry out preventive test, inspection and exchange, the secondary wire of CT to earth reliably .
4.6 Disconnect switch and earthing switch: connecting switch, disconnect switch and earthing switch can be seen t hrough viewing port, controlled by a set of manual operating mechanism to assure of program and reliable locking for circuit breaker, disconnect switch and earthing switch, meet the requirement of five protection.
4.7 Measuring instrument, relay protection, monitor device and auxiliary circuit .
4.8 Earthing: It takes a consideration of 440mm copper busbar as earthing body along with whole width of all panel extending.